Zümrüd Residence
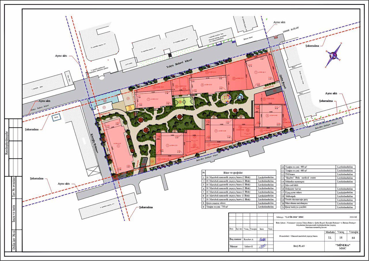
Zumrud Residence, şəhərin mərkəzinə yaxın, lakin sakit və rahat bir ərazidə yerləşən eksklüziv yaşayış kompleksidir.
Layihə müasir memarlıq həlləri, funksional və geniş mənzillər, yüksək keyfiyyətli tikinti materialları və müasir infrastruktur ilə seçilir.
Kompleksdə sakinlərin rahatlığını və təhlükəsizliyini təmin etmək üçün müasir təhlükəsizlik sistemləri, nəzarət və giriş zonaları, həmçinin geniş, işıqlı həyət və istirahət zonaları nəzərdə tutulub.
Burada həm ailələr, həm də fərdi sakinlər üçün ideal şərait yaradılıb: uşaq meydançaları, istirahət sahələri və hərtərəfli kommunal xidmətlər sakinlərin gündəlik ehtiyaclarını qarşılayır.
Zumrud Residence yalnız rahat yaşayış yeri deyil, həm də şəhərin səs-küyündən uzaq, eyni zamanda bütün əsas xidmətlərə yaxın prestijli və komfortlu həyat tərzi təqdim edən bir layihədir.
Layihə qalareyası
Yerləşdiyi ərazi
Bakı şəhəri, Nərimanov rayonu, Təbriz.Ə.Hüseynov və Koroğlu Rəhimov küç.,kəsişməsi
Sektor
4 ha, 7 bina
Mənzil sayı
600+


